Le 6205, 102

6205 Boulevard Laframboise

Description

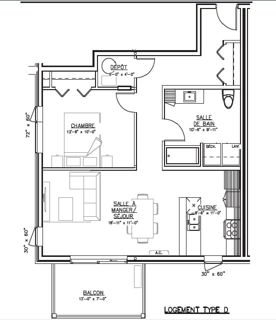
Grandeur 3 1/2
ÉTAGE 1
DISPONIBILITÉ Loué

Situé au cœur du secteur prisé de Saint-Thomas-d’Aquin à Saint-Hyacinthe, le projet Les Jardins Gauvin rend hommage à M. Jean Gauvin, ancien propriétaire de la résidence qui occupait ce terrain. Homme respecté et profondément attaché à sa communauté, M. Gauvin a marqué le voisinage par sa présence chaleureuse et son engagement local. Ce projet résidentiel s’inscrit dans la continuité de cet héritage, en offrant un milieu de vie de qualité, accessible et durable.

Un emplacement stratégique

À quelques minutes des accès à l’autoroute 20, Les Jardins Gauvin bénéficient d’une localisation idéale pour les travailleurs, les familles et les retraités à la recherche d’un équilibre entre tranquillité et proximité des services. Le secteur Saint-Thomas-d’Aquin est reconnu pour sa qualité de vie, ses espaces verts et sa convivialité.

Des logements modernes et abordables

Le projet comprend deux immeubles de 34 logements chacun, conçus pour offrir confort, fonctionnalité et style à un prix compétitif. Que vous soyez à la recherche d’un logement spacieux ou d’un pied-à-terre pratique, Les Jardins Gauvin proposent des unités adaptées à divers besoins, dans un environnement moderne et bien pensé.

CONSULTER L'IMMEUBLE

Inclusions

Balcons

Internet

Air Climatisé

Stationnement Extérieur

Borne électrique

Caractéristiques

  • Rangement Oui
  • Nombre de salle de bain 1
  • Balcon privé 1
  • Stationnement extérieur 1
CONSULTER L'IMMEUBLE

Plan de l’appartement

Shopping Basket